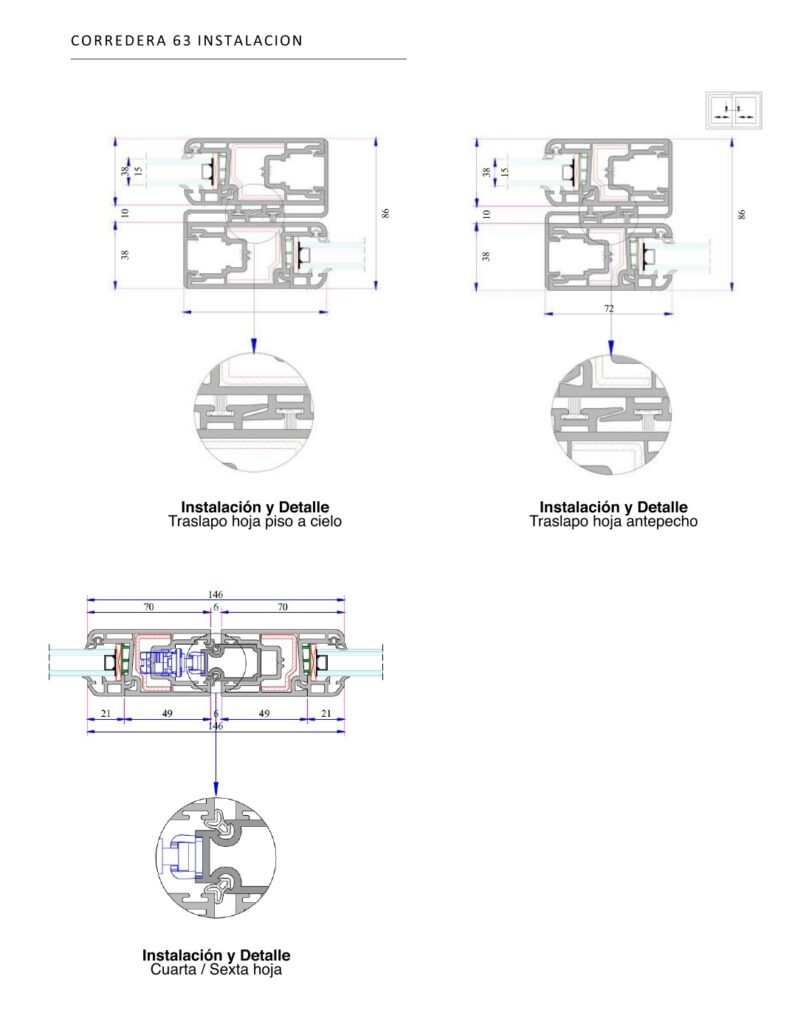
LINEA 222Ancho del Perfil: Marco de doble riel de 63 mm. Marco de triple raíl de 111mm y perfil de hoja con sistema de corredera de 38mm.Número de Cámaras: 3Clase de perfil: Clase B (TS EN 12608-1)Medidas recomendadas por hoja para perfil antepecho:Mínima: 550 X 550Máxima: 900 X 220Medidas recomendadas por hoja para perfil piso a x cielo:Mínima: 550 X 550Máxima: 1200 X 220 ESPECIFICACIONES Doble riel de 63mm, triple raíl de 111mm, perfil de hoja corredera de 38mm.Perfecto aislamiento térmico, acústico y de agua gracias al sistema de 3 cámaras.Aplicación de vidriado simple de 4-5mm y vidrio de instalación de 17-18mm CORREDERA 63 PERFILES CORREDERA 63 HERRAJES CORREDERA 63 PERFILES CORREDERA 63 INSTALACION APERTURAS