serie penwood 232

LINEA PENWOOD 232

Ancho de perfil: Marco de doble riel de 75mm, marco monoriel de 92,5mm y perfil de hoja corredera de 50mm.

Número de cámaras: 3

Clase de perfil: Clase B (TS EN 12608-1)

Tipo de sello y color: TPE – Gris / Negro

Espesor de vidrio (mm): 4-6, 20, 24mm

Medidas recomendadas por hoja:

Mínima: 550 X 550

Máxima: 1300 X 2400

ESPECIFICACIONES

  • Ancho de perfil de 75mm con marco de doble riel y monoriel alternativo de 92,5mm de ancho y ancho de perfil de hoja de 50mm
  • Perfecto asilamenito térmico, acústico y de agua gracias al sistema de 3 cámaras
  • Aplicación de vidrio simple 4-6mm y vidrio doble de 20, 24mm mediante junquillos de diferentes espesores
  • Opciones de aplicación con persiana enrollable y sin persiana enrollable.
  • Aplicaciones foliadas en madera
serie penwood 232wwww
colores 1

CORREDERA 75C COMPOSITE PERFILES

75c composite

CORREDERA 75C HERRAJES

75c composite herraje

APERTURA

75c composite apertura

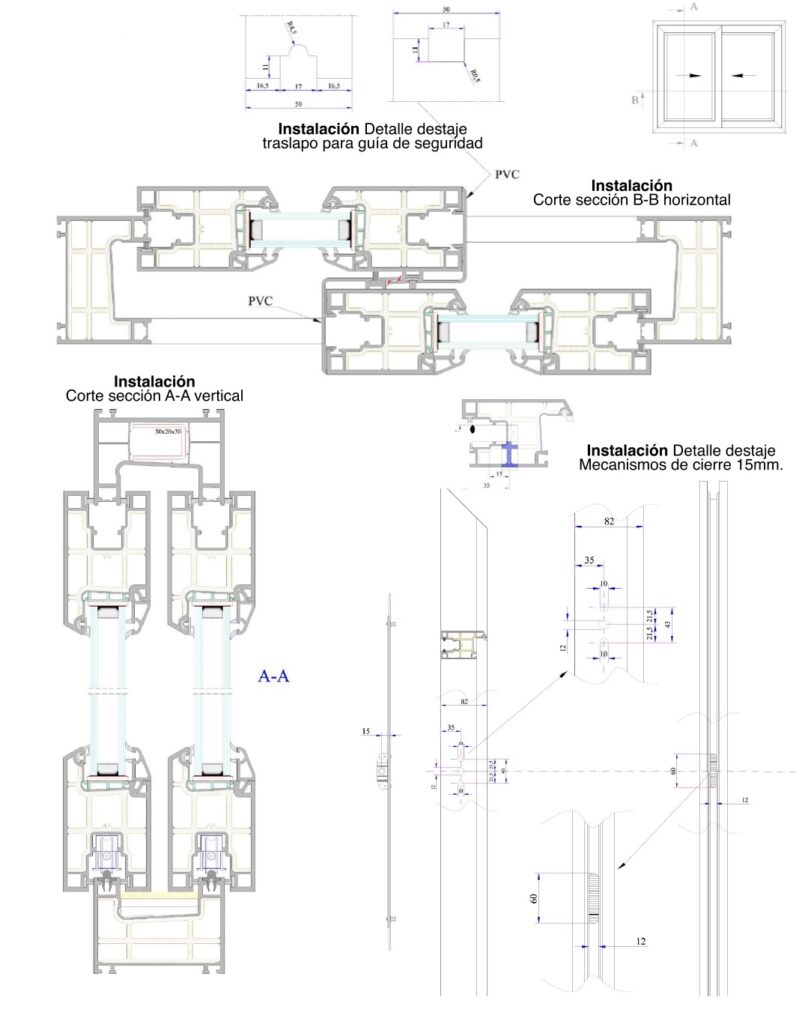
CORREDERA 75C COMPOSITE INSTALACION

compose instalacion 75c

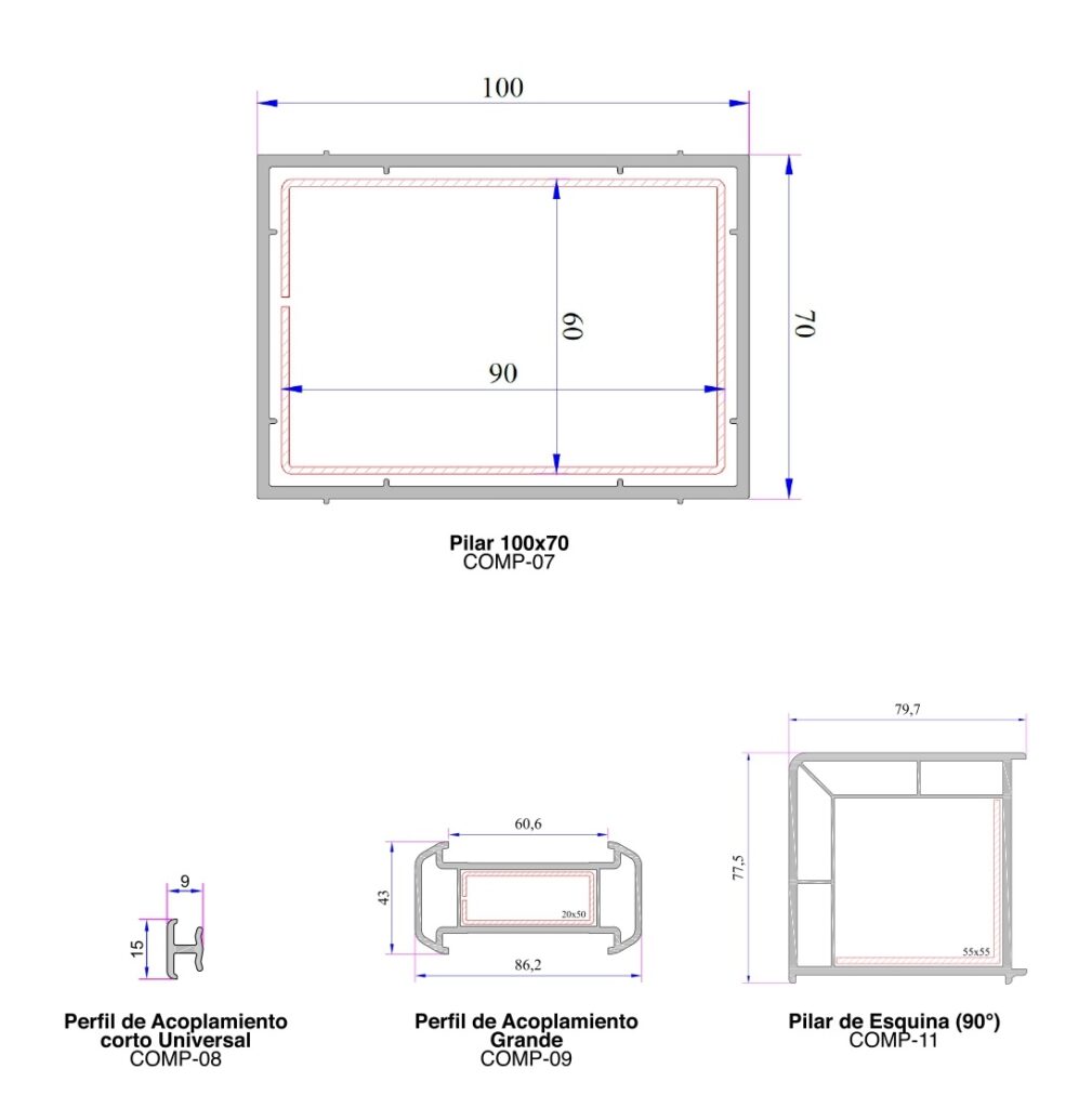
PERFILES COMPLEMENTARIOS

perfil complementario